
概述
SRZ型是一種既適用于蒸汽系統又適用于熱水系統中作為加熱空氣用的空氣加熱器,主要用于熱風采暖、空氣調節系統及干燥裝置的空氣加熱,是熱風裝置中的主要設備,它在當前的工礦企業,各大型建筑物的采暖通風系統中得到應用。
散熱器采用熱介質可以為蒸汽或熱水。蒸汽的工作壓力為0.3—16公斤/平方厘米,熱水溫度可在130-70℃左右。
SRZ型散熱器主要由順空氣流向的三排叉排列螺旋翅片管束組成,其翅片管均用Ф21× 2mm無縫鋼管繞制上15×0.5mm的皺折鋼帶而成,呈螺旋狀,片距有5mm—大“D”,6mm-中“Z”、8mm-小”X”三種共三十八種規格。
SRZ型散熱器的特點是結構緊湊,外形美觀、便于安裝,方便管理,經久耐用,它不僅適用于集中送風式采暖,同時也適用局部采暖,或其它用途。
GLⅡ型散熱器用于造紙、化工、輕紡等企業的空調、冷卻除濕等工程。因其散熱管小,翅片密,所以效果好。
SRZ型編號方法
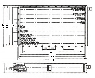
型號——通風正截面長度尺寸分米數的化整×通風正截面寬度尺寸分米數的化整(片趴代號)如通風正截面的長為1505mm,寬為1001,大型,片距為5mm,則為SRZ-15×10(D)。
主要技術參數
SRZ型是一種既適用于蒸汽系統又適用于熱水系統中作為加熱空氣用的空氣加熱器,主要用于熱風采暖、空氣調節系統及干燥裝置的空氣加熱,是熱風裝置中的主要設備,它在當前的工礦企業,各大型建筑物的采暖通風系統中得到應用。
散熱器采用熱介質可以為蒸汽或熱水。蒸汽的工作壓力為0.3—16公斤/平方厘米,熱水溫度可在130-70℃左右。
SRZ型散熱器主要由順空氣流向的三排叉排列螺旋翅片管束組成,其翅片管均用Ф21× 2mm無縫鋼管繞制上15×0.5mm的皺折鋼帶而成,呈螺旋狀,片距有5mm—大“D”,6mm-中“Z”、8mm-小”X”三種共三十八種規格。
SRZ型散熱器的特點是結構緊湊,外形美觀、便于安裝,方便管理,經久耐用,它不僅適用于集中送風式采暖,同時也適用局部采暖,或其它用途。
GLⅡ型散熱器用于造紙、化工、輕紡等企業的空調、冷卻除濕等工程。因其散熱管小,翅片密,所以效果好。
SRZ型編號方法
型號——通風正截面長度尺寸分米數的化整×通風正截面寬度尺寸分米數的化整(片趴代號)如通風正截面的長為1505mm,寬為1001,大型,片距為5mm,則為SRZ-15×10(D)。
主要技術參數
| 型號 |
散熱 面積 (M2) |
通風凈 截面積 (M2) |
熱介質 通過載 面積 (M2) |
管 排 樹 (排) |
螺旋翅 片管根 樹 (根) |
連接 管φ (寸) |
尺寸(mm) |
重 量 (kg) |
|||||||||
| A | A1 | A2 | B | B1 | B2 | n | N | m | M | ||||||||
| SRZ-5×5(D) | 10.13 | 0.154 | 0.0043 | 3 | 23 | 11/2" | 497 | 532 | 562 | 507 | 547 | 573 | 5 | 500 | 4 | 400 | 54 |
| SRZ-5×5(Z) | 8.78 | 0.155 | 48 | ||||||||||||||
| SRZ-5×5(X) | 6.23 | 0.158 | 45 | ||||||||||||||
| SRZ-10×5(D) | 19.92 | 0.302 |
1001 1250 |
1041 1290 |
1067 1316 |
9 | 900 | 93 | |||||||||
| SRZ-10×5(Z) | 17.26 | 0.306 | 84 | ||||||||||||||
| SRZ-10×5(X) | 12.22 | 0.312 | 12 | 1200 | 76 | ||||||||||||
| SRZ-12×5(D) | 24.86 | 0.378 | 113 | ||||||||||||||
| SRZ-6×6(D) | 15.33 | 0.231 | 0.0055 | 3 | 29 | 2" | 623 | 658 | 688 | 609 | 649 | 675 | 6 | 600 | 5 | 500 | 77 |
| SRZ-6×6(Z) | 13.29 | 0.234 | 69 | ||||||||||||||
| SRZ-6×6(X) | 9.43 | 0.239 | 63 | ||||||||||||||
| SRZ-10×6(D) | 25.13 | 0.381 | 1001 | 1041 | 1067 | 9 | 900 | 115 | |||||||||
| SRZ-10×6(Z) | 21.77 | 0.385 | 103 | ||||||||||||||
| SRZ-10×6(X) | 15.42 | 0.393 | 93 | ||||||||||||||
| SRZ-12×6(D) | 31.35 | 0.475 | 1250 | 1290 | 1316 | 12 | 1200 | 139 | |||||||||
| SRZ-15×6(D) | 37.73 | 0.572 | 1505 | 1545 | 1571 | 14 | 1400 | 164 | |||||||||
| SRZ-15×6(Z) | 32.67 | 0.579 | 146 | ||||||||||||||
| SRZ-15×6(X) | 23.13 | 0.591 | 139 | ||||||||||||||
| SRZ-7×7(D) | 20.31 | 0.320 | 0.0063 | 3 | 33 | 2" | 717.5 | 742 | 772 | 710 | 750 | 776 | 7 | 700 | 6 | 600 | 97 |
| SRZ-7×7(Z) | 17.60 | 0.324 | 87 | ||||||||||||||
| SRZ-7×7(X) | 12.48 | 0.329 | 79 | ||||||||||||||
| SRZ-10×7(D) | 28.59 | 0.450 | 1001 | 1041 | 1067 | 9 | 900 | 129 | |||||||||
| SRZ-10×7(Z) | 24.77 | 0.456 | 115 | ||||||||||||||
| SRZ-10×7(X) | 17.55 | 0.464 | 104 | ||||||||||||||
| SRZ-12×7(D) | 35.67 | 0.563 | 1250 | 1290 | 1316 | 12 | 1200 | 156 | |||||||||
| SRZ-15×7(D) | 42.93 | 0.678 | 1505 | 1545 | 1571 | 14 | 1400 | 183 | |||||||||
| SRZ-15×7(Z) | 37.18 | 0.685 | 164 | ||||||||||||||
| SRZ-15×7(X) | 26.32 | 0.698 | 145 | ||||||||||||||
| SRZ-17×7(D) | 49.90 | 0.788 | 1750 | 1790 | 1816 | 17 | 17 | 210 | |||||||||
| SRZ-17×7(Z) | 43.21 | 0.797 | 187 | ||||||||||||||
| SRZ-17×7(X) | 30.58 | 0.812 | 169 | ||||||||||||||
| SRZ-22×7(D) | 62.75 | 0.901 | 0.0063 | 3 | 33 | 11/2" | 2202 | 2242 | 2268 | 21 | 2100 | 260 | |||||
| SRZ-15×10(D) | 62.14 | 0.921 | 0.0089 | 3 | 47 | 11/2" | 1001 | 1036 | 1066 | 1505 | 1545 | 1571 | 10 | 1000 | 14 | 1400 | 255 |
| SRZ-15×10(Z) | 52.95 | 0.932 | 227 | ||||||||||||||
| SRZ-15×10(X) | 37.48 | 0.951 | 203 | ||||||||||||||
| SRZ-17×10(D) | 71.06 | 1.072 | 1750 | 1790 | 1816 | 17 | 1700 | 293 | |||||||||
| SRZ-17×10(Z) | 61.54 | 1.085 | 260 | ||||||||||||||
| SRZ-17×10(X) | 43.56 | 1.106 | 232 | ||||||||||||||
| SRZ-20×10(D) | 81.27 | 1.226 | 2002 | 2042 | 2068 | 19 | 1900 | 331 | |||||||||


